MKS architecture

bureaux

LEAD OFF

moa
privée
surface
65 m2
Coût
nc
état
livraison 2023
PROGRAMME
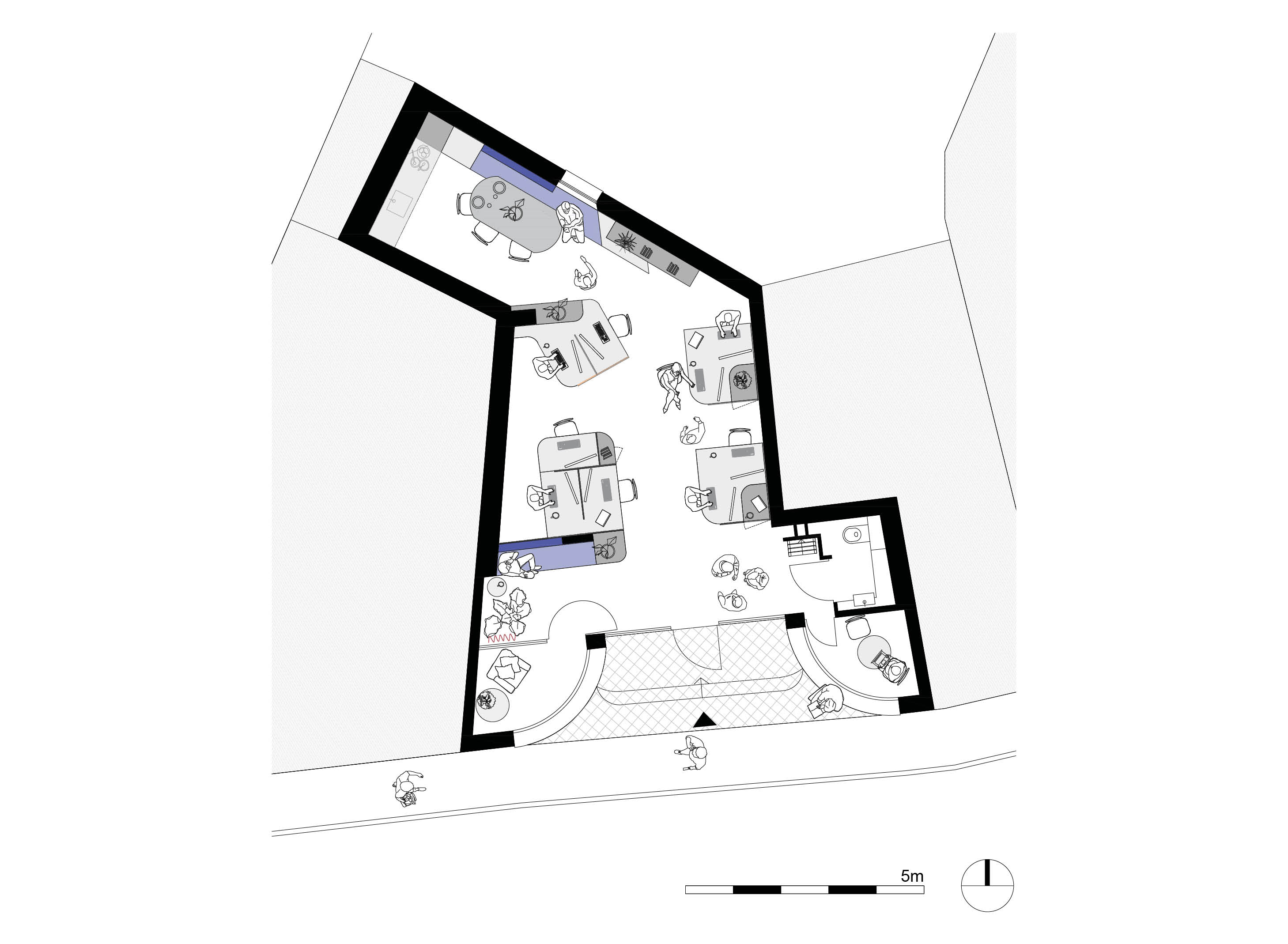
Rénovation d'un ancien garage en bureaux

Au rez-de-chaussée d’un immeuble au style art déco, l’ancien garage se transforme pour accueillir les bureaux de l’entreprise digitale “LEAD OFF”. Le lieu devait refléter l’image de la société : dynamique, créative et ouverte.

La structure béton existante, alliée à une hauteur généreuse de près de 4 m, a été révélée et valorisée. Certaines parties sont laissées brutes, affirmant la matérialité du lieu et son caractère industriel.

Deux vitrines cintrées en fer forgé, éléments singuliers de la façade, sont restaurées pour préserver leur finesse. En retrait, de nouvelles menuiseries en bois à double vitrage assurent le confort thermique tout en libérant des espaces tampons. Ces zones deviennent des lieux d’appropriation : surfaces d’exposition, coins végétalisés ou assises improvisées, au gré des usages et des saisons.

Au centre, une baie vitrée en métal laqué blanc complète la composition et ouvre largement les bureaux sur la rue, en dialogue avec les vitrines latérales.

À l’intérieur, l’aménagement traduit l’identité de l’entreprise à travers des matériaux simples et bruts – médium lasuré, contreplaqué bakélisé – et une palette de couleurs adaptée. L’organisation privilégie la flexibilité et la convivialité : bureaux partagés en îlots, espace d’accueil et de repos, espace de réunion intégrant une kitchenette. L’ensemble compose un environnement de travail à la fois fonctionnel, chaleureux et résolument contemporain.

Photographe : Nicolas da Silva Lucas